Camera Store for ITV Studios
Project Brief
ITV required a dedicated camera store designed to safeguard high-value production equipment while improving operational efficiency within its Trafford Wharf site. The facility needed to accommodate secure storage, flexible workspace, and staff amenities, all delivered within a compact footprint. Fire safety, accessibility, and integration with studio-wide security and M&E systems were essential requirements.
To meet sustainability objectives, the building fabric had to provide excellent thermal efficiency, low energy demand, and durable finishes with minimal maintenance. Crucially, the project had to be delivered quickly and safely within the constraints of a live broadcast environment, where disruption to studio operations had to be kept to an absolute minimum
Timeline: Delivered in just 1 week from site set-up to handover.
Key Features: Secure storage, integrated M&E systems, fire-rated construction, modular flexibility

Client
ITV Studios
Sector
Communication Services
Location
Trafford Wharf, Manchester
The Main Features
Outside
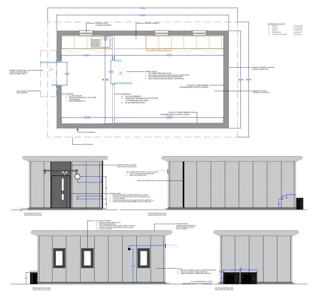
Kingspan Cladding – Spectrum Greylock KS900MR cladding delivers a sleek, modern exterior finish while enhancing thermal performance and weather resistance of the building envelope.
Aluminium Windows– Powder-coated aluminium windows with low-E glazing ensure natural daylight, reduced heat loss, and compliance with Part M accessibility requirements.
Glass Canopy – A glazed canopy supported by stainless steel brackets provides sheltered access, improving usability while enhancing the visual impact of the building’s entrance.
Powder-Coated Steel Door –Robust external doors with integrated vision panels offer high-security access control while meeting energy efficiency and accessibility regulations.
Architectural Integration –The façade was carefully designed to blend with the surrounding ITV Studios environment, ensuring a consistent, professional aesthetic across the site.
Inside
Fire-Rated Doors – Internal ash veneer FD30S fire doors with vision panels ensure compliance with safety standards while allowing visibility and secure circulation throughout the store.
Durable Flooring –Tarkett Vylon Plus vinyl flooring provides resilience against heavy use, combining low maintenance with a professional, hygienic finish suitable for technical storage spaces.
Worktop Facilities – Fitted worktops and benches support equipment preparation and maintenance, creating a functional environment for staff carrying out daily technical operations.
Integrated M&E Systems – Air conditioning, structured cabling, LED lighting, and alarm systems were installed to ensure comfort, safety, and connectivity for staff and equipment.
Fitted Kitchen Area – Staff facilities include Howdens Greenwich gloss kitchen units, sink, and storage, providing practical support for team members working in the facility.
Challenges & how we overcame them
Working within an active broadcast site required careful planning to avoid disrupting filming schedules. Off-site modular fabrication reduced noise and traffic, while on-site works were tightly scheduled around production needs. Constant coordination with ITV staff ensured seamless installation, allowing the project to progress without interfering with ongoing studio operations.
Protecting ITV’s high-value camera equipment demanded robust physical and electronic security. Reinforced steel doors, controlled access systems, and intruder alarms were integrated into the wider studio security network. Vision panels provided visibility without compromising safety. These combined measures created a resilient storage environment, safeguarding sensitive production assets against theft or damage.
Daily use meant finishes had to withstand continuous equipment movement and staff activity. Kingspan cladding, Tarkett Vylon Plus vinyl flooring, and pre-finished plasterboard were specified for resilience and low maintenance. These durable choices extend the facility’s lifecycle, reduce long-term costs, and ensure consistent performance in a demanding broadcast environment.
The modular facility required seamless integration of essential building services, including air conditioning, LED lighting, and structured cabling. Off-site prefabrication streamlined installation and reduced on-site disruption. On delivery, the systems were fully operational, meeting compliance standards while supporting staff comfort, safety, and connectivity. This ensured efficiency from day one.
The restricted site demanded maximum efficiency in layout design. Storage, workstations, and staff amenities had to be accommodated within a small footprint without compromising accessibility or compliance. Careful planning allowed circulation and storage areas to be optimised, delivering a highly functional, space-efficient building that meets operational and regulatory needs.
Although designed for technical use, the store had to complement the wider ITV Studios environment. Spectrum Greylock Kingspan cladding, aluminium windows, and a glazed canopy provided a modern, professional finish. These materials ensured visual harmony with existing architecture, reinforcing ITV’s brand standards while maintaining durability and weather resistance.
Design Process
The design was guided by detailed drawings and floorplans that balanced security, functionality, and staff comfort. Early coordination ensured storage layouts, circulation routes, and service zones worked seamlessly together. Elevations, material specifications, and M&E details were refined through iteration, creating a modular facility that is efficient, compliant, and visually cohesive.
The Results
The completed camera store at ITV Trafford Wharf has delivered a secure, durable, and purpose-built solution for equipment storage and maintenance. Staff now benefit from a safe, well-organised facility, combining modern workspace, practical amenities, and integrated building systems. Robust materials and fire-rated construction ensure long-term performance, reducing maintenance demands while supporting safety and compliance.
Externally, the building’s Kingspan cladding, aluminium windows, and glass canopy provide a professional aesthetic in harmony with the wider studio environment. Accessibility features, including level thresholds and vision panels, ensure inclusivity, while advanced security systems provide reassurance that valuable assets are fully protected.
The modular approach enabled rapid delivery with minimal disruption to ongoing broadcast operations, ensuring that ITV could maintain business continuity. By combining speed, security, and resilience, the project represents a strong investment in ITV’s operational infrastructure, enhancing the efficiency of its production teams. The store not only supports present requirements but also offers flexibility and durability to serve future broadcast demands.
For an informal chat
You May Also Like
These Related Stories

New Childcare Unit for Twyn Primary School

Hyde Community College



No Comments Yet
Let us know what you think