New Childcare Unit for Twyn Primary School
Project Brief
Twyn Primary School in Caerphilly required a new modular childcare unit to enhance its early years provision and provide additional capacity for after-school care.
The school recognised increasing demand from families in the community, particularly in line with the Welsh Government’s Childcare Offer, which provides support for working parents. The brief called for a high-quality, single-storey modular building designed to include two dedicated childcare activity rooms, staff and pupil toilets, an office, and a staff room. The new facility needed to integrate seamlessly with the existing Early Years building and wider school site, offering safe and accessible connections. Sustainability, biodiversity enhancement, and minimal disruption during construction within the live school environment were also key priorities.
Timeline: Delivered in just 3 months from site set-up to handover, with minimal disruption to the live school environment.
Key Features: Improved thermal efficiency, SuDS drainage system, biodiversity enhancements, modular flexibility

Client
Twyn Primary School
Sector
Education
Location
Caerphilly, Wales
The Main Features
Outside
Modern Facade– Plastisol cladding, Siberian larch panels, EDPM roof, and UPVC windows deliver durability, energy efficiency, and a contemporary appearance, reducing long-term maintenance while enhancing aesthetics.
Secure Parking– A gated car park provides staff access while safeguarding measures control entry. Pedestrian routes link the unit with the Early Years building securely and conveniently.
Outdoor Play– A canopy shelters outdoor play areas, encouraging year-round learning and exploration. This supports active development, outdoor teaching and the school’s vibrant extracurricular childcare activities.
SuDS Drainage– Sustainable drainage swales manage surface water, preventing runoff and enhancing site resilience. Compliance with Welsh SAB standards supports long-term sustainability and ecological responsibility.
Biodiversity– Native planting, swales and habitat features enrich the school grounds. Landscaping mitigates vegetation loss and encourages wildlife, improving site biodiversity alongside childcare provision.
Inside
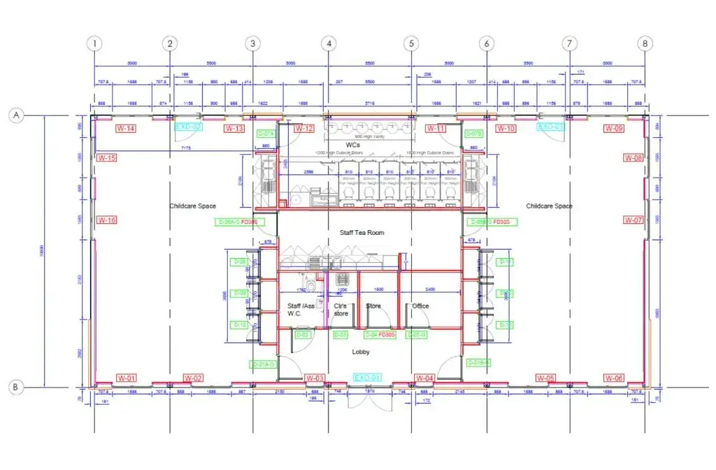
Childcare Activity Rooms– Two flexible rooms designed for play and learning, with large windows, robust finishes and adaptable layouts to support diverse activities for pre-school and after-school provision.
Staff Facilities– Office and staff room provide comfortable, practical working environments for childcare teams, supporting administration, collaboration and rest while ensuring privacy for meetings with families.
Children’s Toilets– Purpose-designed toilets with appropriately scaled cubicles, sinks, and baby change area, supporting safe, hygienic use. Accessible toilets ensure inclusivity for all pupils and staff members.
Accessibility– Wide corridors, vision panels and level access ensure safe, inclusive movement for children and staff. The clear internal layout supports supervision and easy circulation throughout.
Safety Systems– Integrated fire and intruder alarms connect to existing school systems, ensuring secure safeguarding. Vision panels and secure access doors maintain visibility and control across the building.
Challenges & how we overcame them
The new unit occupied a tightly bound corner of the playing fields, surrounded by housing and existing school buildings. Designing within limited space demanded compact, efficient layouts. Boundary treatments, parking, and pedestrian routes had to be carefully planned. The final design balanced operational needs with sensitive integration into the neighbourhood and school grounds.
Early years facilities require strong safeguarding measures. The challenge was providing security without compromising a welcoming atmosphere. Controlled-access gates, fencing, and vision panels were integrated, while intruder and fire alarms linked with existing systems. These measures offered safety and reassurance for parents and staff, ensuring children were protected while still learning in an open, inclusive setting.
Building within an operational primary school demanded exceptional safety management. Pupils, staff, and parents needed uninterrupted daily access. To minimise disruption, modules were fabricated offsite and craned into position during scheduled windows. This allowed internal fit-out to progress quickly, while fencing, signage, and phased works ensured the live school environment remained safe, functional, and compliant throughout the project’s construction period.
The childcare unit required robust finishes capable of withstanding daily use. Material choices were crucial: plastisol cladding, fibre cement boards, EDPM roofing, and UPVC windows ensured resilience and low maintenance. These selections reduced long-term costs while providing a safe, durable environment. Balancing affordability and durability was essential to secure a long-lasting, efficient facility for the school.
Multiple regulations applied, including childcare standards, accessibility legislation, and SuDS approvals. Each stage demanded evidence and detailed design checks. Modular construction assisted compliance by enabling strict quality control in factory conditions. This ensured the building met all statutory obligations before arriving on site, delivering a safe, inclusive, and sustainable childcare facility aligned with local and national requirements
The project had to comply with Sustainable Drainage Systems (SuDS) standards while also mitigating ecological impacts. Vegetation clearance was balanced with enhancements including swales, native planting, and habitat retention. These measures supported water management, biodiversity, and climate resilience, demonstrating how sustainability considerations could be successfully integrated into the development of new educational facilities.
Childcare-Specific Design
The new childcare unit has been purposefully designed to meet the needs of pre-school and after-school children, with two flexible activity rooms, age-appropriate toilets, and baby changing facilities. Durable materials were selected to withstand heavy daily use while maintaining a welcoming environment. Outdoor learning is supported through sheltered play areas that provide year-round opportunities for exploration. Accessibility is central to the design, ensuring inclusive routes and facilities. The building creates a safe, stimulating, and resilient setting that supports early years learning and development.
The Results
The new childcare unit at Twyn Primary School has transformed provision for early years and after-school care in Caerphilly. The building offers two large, flexible childcare spaces designed to adapt to different activities, age groups and teaching styles. Children benefit from bright, naturally lit rooms with durable finishes that create a safe and stimulating environment, while staff gain access to purpose-built facilities that support both learning delivery and effective administration.
Externally, the secure pedestrian links and dedicated staff car park improve site organisation and safeguarding. Outdoor covered play areas encourage year-round activity, ensuring children can enjoy physical development and learning in all weather conditions. Biodiversity enhancements, including swales and native planting, enrich the school landscape and support sustainability.
The project strongly supports the Welsh Government Childcare Offer, addressing demand for affordable early years places and extended provision for working families. Through modular construction, Elite Systems delivered the unit quickly and with minimal disruption to the live school environment. The design also ensures long-term durability and reduced maintenance costs through robust material choices.
Overall, the childcare unit represents a significant investment in community infrastructure, providing a modern, sustainable and inclusive facility that will serve families for many years.
For an informal chat
You May Also Like
These Related Stories

Modular Childcare Unit Extension at Cwrt Rawlin Primary School

Camera Store for ITV Studios



No Comments Yet
Let us know what you think