New SEND building for St Joseph’s Catholic High School
Project Brief
St Joseph’s Catholic High School in Slough required a new specialist SEND facility to expand provision for pupils with additional educational needs and create a purpose-built, inclusive learning environment.
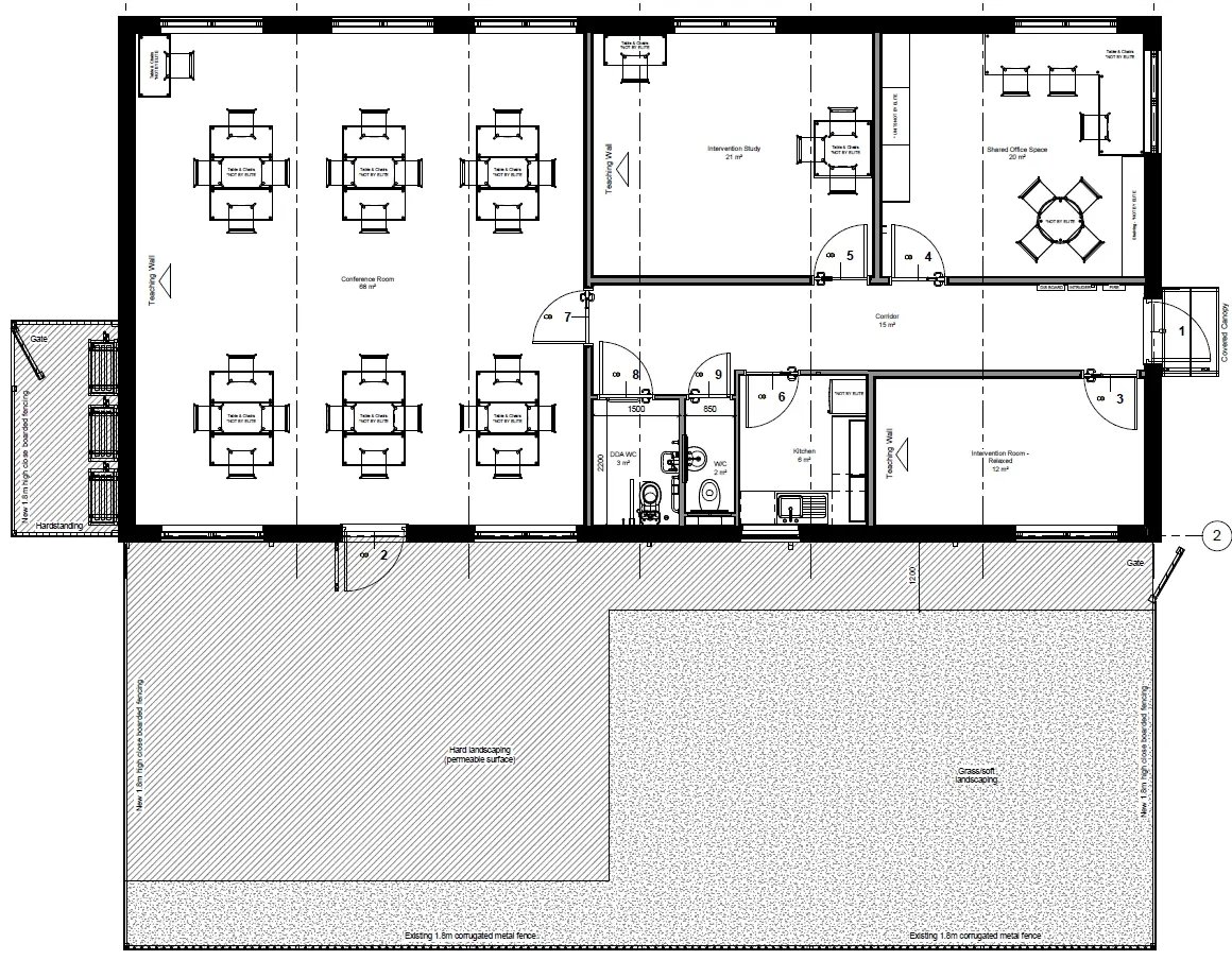
Working alongside Ingleton Wood, the school identified the need for a high-quality modular solution that could be delivered efficiently while minimising disruption to the live school site. The brief called for a single-storey building of approximately 150m², incorporating a large classroom and conference space, intervention rooms, a staff office, kitchen facilities, and fully compliant sanitary provision. Accessibility, durability, and long-term performance were key considerations, alongside seamless integration with the existing school campus.
Elite Systems was appointed to deliver a turnkey modular solution, combining thoughtful design, off-site manufacture, and rapid on-site installation. The result is a safe, welcoming, and fully accessible SEND facility that supports both pupils and staff, delivered within a demanding programme.
Timeline: Successfully delivered in just 9 weeks on site, from initial set-up through to final handover.
Key Features: Timber cladding, inclusive classrooms, intervention spaces, specialist WC facilities, secure external play area, permeable landscaping, high insulation values, and a 60-year design life.

Client
St Joseph’s Catholic School
Sector
Education
Location
Slough, Berkshire
The Main Features
Outside
Contemporary Timber Cladding
Thermally modified spruce panels create a warm, modern façade that blends seamlessly with surrounding school buildings.
Robust Roofing System
Insulated EPDM flat roof achieves 0.16W/m²K, combining weatherproofing with long-term performance and low maintenance requirements.
Secure Fencing & Gates
1.8m-high close-boarded timber fencing and access-controlled gates enclose the building, providing security and safeguarding for pupils.
Permeable Hard Landscaping
Sustainable paving allows for effective drainage, creating safe, level access routes around entrances and outdoor circulation areas.
Energy-Efficient Windows
Aluminium-framed double-glazed casements in RAL 7016 ensure natural light, thermal performance, and robust, low-maintenance operation.
Integrated External Lighting
Bulkhead fixtures provide safe illumination for entry points, ensuring visibility and compliance with external M&E specifications.
Inside
Flexible Conference Classroom
A 68m² multi-use teaching and meeting space, equipped with interactive technology and adaptable layouts for diverse group activities.
Targeted Intervention Rooms
Two specialist spaces (12–21m²) for focused teaching and therapy, designed to be calming, private, and acoustically resilient.
Inclusive Staff Facilities
Shared office and kitchen provide work and rest space for staff supporting SEND pupils, meeting workplace regulations.
Accessible Sanitary Provision
Fully Part M-compliant WC, with grab rails, antislip vinyl flooring, and robust finishes designed for safety and hygiene.
Corridor Circulation Spine
Central corridor links all rooms, ensuring logical flow, safe movement, and clear visibility for supervision across the building.
Durable Internal Finishes
Fire-rated partitions, acoustic insulation, and easy-clean surfaces combine safety, functionality, and resilience against daily intensive use.
Challenges & how we overcame them
The Trust required a 60-year design life with a 25year warranty. This demanded robust materials, such as thermally modified timber cladding, firerated internal partitions, and durable finishes. Each component had to be factory-tested and specified to meet high levels of wear and tear, ensuring minimal maintenance costs across the building’s lifespan.
The specification emphasised long-term sustainability, with U-values of 0.16–0.26 W/m²K and airtight construction. Achieving this performance within modular constraints required close collaboration between design and factory teams. Ensuring compliance with current Building Regulations and the Trust’s environmental expectations demanded continuous monitoring of thermal bridging, insulation layers, and airtightness testing.
The SEND block was installed within a functioning secondary school. Deliveries, craning, and installation had to be scheduled outside peak pupil movement times. Noise and dust control measures reduced disruption to lessons. Clear signage, fencing, and supervised access points ensured safety for staff, students, and contractors throughout the construction phase.
Meeting and exceeding Part M requirements meant carefully coordinating door widths, corridor clearances, and level thresholds. Specialist sanitary provision demanded adjustable fittings, grab rails, and sufficient turning circles. The modular design required precision to ensure accessibility standards were fully integrated into each bay without compromising the manufacturing process or internal spatial efficiency.
Limited site area required efficient layout planning, with fencing, landscaping, and drainage coordinated tightly around the block. New permeable surfaces and play space had to be integrated while maintaining safe circulation and emergency access routes. Precision settingout was essential to avoid clashes with existing services and infrastructure while meeting planning requirements.
The integration of mechanical and electrical services, including heating, ventilation, access control, and lighting, presented challenges. Ceiling voids were designed to incorporate distribution without compromising acoustic performance or ceiling heights. External condensers were securely enclosed, and ducting routes carefully planned to avoid clashes with structural or architectural elements.
SEND-Specific Design
The building’s plan was carefully configured to suit a broad spectrum of SEND requirements, ensuring both practicality and a positive learning atmosphere. Wide corridors and flush thresholds provide smooth, unobstructed circulation for wheelchair users and mobility aids, while accessible sanitary facilities are centrally located to support dignity and ease of use. Acoustic wall linings and suspended ceilings reduce background noise, creating calmer classrooms that are less overwhelming for pupils with sensory sensitivities. Classrooms are designed to balance robust functionality with a welcoming, student-friendly environment, supporting both group learning and individual support sessions.
The Results
The completed SEND block at St Joseph’s Catholic High School delivers a modern, durable, and inclusive facility that directly addresses the Trust’s vision for enhanced SEND provision. Internally, pupils benefit from a large flexible classroom, smaller therapeutic spaces, and accessible sanitary provision. Wide corridors and robust finishes ensure safe circulation and long-term resilience. For staff, new office and kitchen spaces provide practical support facilities, while the internal layout allows for efficient supervision and flexible teaching methods.
Externally, thermally modified timber cladding offers a contemporary, low-maintenance finish that integrates with the wider school estate. Secure fencing and permeable paving provide safety and weather resilience, while energy-efficient windows ensure natural light and comfort. The building demonstrates the benefits of modular construction: rapid delivery, qualitycontrolled manufacturing, and reduced on-site disruption. Designed with a 60-year life expectancy, it is a sustainable investment for the Trust, balancing upfront efficiency with longterm performance.
Overall, the SEND block represents a safe, sustainable, and future-proofed facility that will support inclusive education, enhance staff capability, and serve as a long-term asset to the school community.
A Headteachers Perspective
Kelly Riddle, Headteacher at St Joseph’s Catholic High School in Slough, shares her experience of delivering a high-quality modular SEND building on a live school site.
In the video, Kelly reflects on SEND-led design, safeguarding during construction, and how modern modular buildings are transforming quality and value in education.
For an informal chat
You May Also Like
These Related Stories

Heckmondwike Grammar School
Creating extra space to grow at Edith Borthwick School



No Comments Yet
Let us know what you think