Hazelmere Infant School
Project Brief
Essex County Council required a new adaptive standalone SEND building at a live primary school in Colchester, Essex. The project demanded a full turnkey solution, incorporating off-site manufacture, delivery and installation within a fixed school programme. The new facility needed to provide a flexible SEND classroom, sensory spaces and inclusive hygiene facilities, while achieving net zero carbon in operation and full compliance with DfE guidance, Essex County Council standards and Building Regulations. Delivered within an operational school, the solution had to minimise disruption, safeguard pupils and staff, and provide a durable, future-ready learning environment.
Thanks to everyone at Elite Systems for all their hardwork on the project. The children (and staff) love the new space!

Client
Essex County Council - Hazelmere Infant School
Sector
Education
Location
Colchester, Essex
The Main Features
Outside
The building features a durable, contemporary design with plastisol-coated cladding, robust detailing and a low-profile roof that integrates sensitively with the existing school estate while minimising long-term maintenance. Inclusive, SEND-focused access is provided through Part M compliant doors, level thresholds and clearly defined routes, ensuring safe daily operation within a live school environment. Integrated all-electric services are discreetly accommodated, and a low-maintenance material palette has been selected to withstand intensive educational use while respecting the surrounding residential context and maintaining a cohesive appearance across the wider site.
Inside
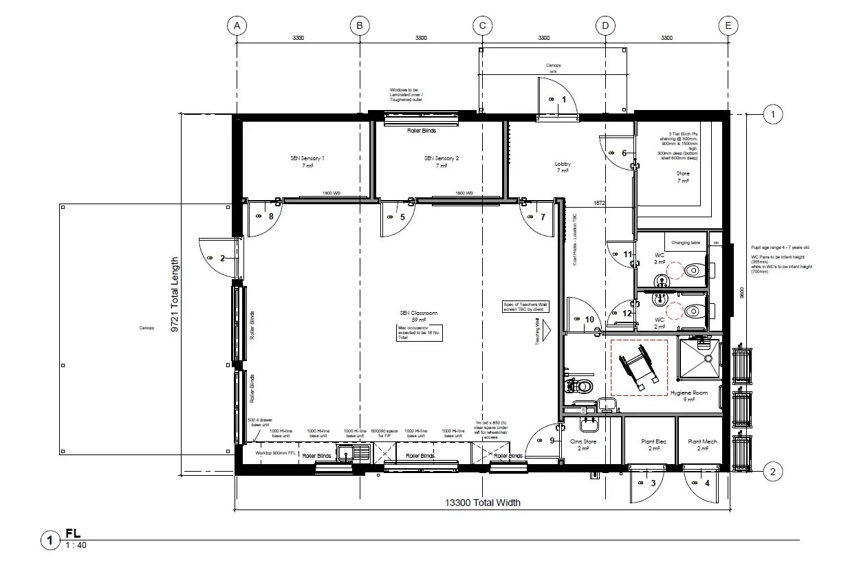
The scheme provides a flexible SEN classroom designed for up to 16 ambulant pupils, supporting a range of teaching methods and individual learning needs. Dedicated sensory spaces are directly connected to the main classroom, offering calm environments for emotional regulation and focused learning, alongside inclusive hygiene and accessible WC facilities that ensure dignity and compliance. Clear circulation, strong sightlines and robust internal finishes promote effective supervision, safeguarding and long-term durability while maintaining a safe and welcoming learning environment.
Challenges & how we overcame them
Delivering the project within an operational infant school required careful safeguarding, logistics planning and communication. Offsite manufacture significantly reduced on-site activity, while tightly managed delivery and installation windows ensured pupil and staff safety was maintained throughout construction.
The building needed to support a wide range of additional learning needs while remaining adaptable for future use. Achieving this within a compact footprint required careful spatial planning and early engagement with the client team to resolve layout, circulation and supervision requirements
Meeting stringent energy performance targets required a fabric-first design approach combined with all-electric building services. Early coordination of insulation, airtightness and building services ensured compliance with net zero operational requirements.
Integrating new mechanical and electrical systems with existing site infrastructure required detailed surveys and early coordination. This ensured connections were completed safely and efficiently without disrupting wider school operations.
The project was required to meet a fixed completion date driven by school operational needs. Parallel design, procurement and manufacture were essential to maintaining programme certainty and mitigating risk.
The building was required to comply fully with DfE specifications, Essex County Council technical annexes and Building Regulations. Factory-controlled manufacture enabled consistent quality assurance and reduced compliance risk prior to arrival on site.
The Results
The completed SEND expansion at Hazelmere Infant School has delivered a high-quality, inclusive learning environment within a clearly defined and well-controlled programme. The building was manufactured off site while enabling works progressed in parallel, allowing installation to take place in a single day in late October and significantly reducing disruption to the operational school. Follow-on works, commissioning and final approvals were completed efficiently through November, enabling Building Control sign-off and handover in early December. This structured approach ensured certainty of delivery, safeguarded pupils and staff throughout construction and provided Essex County Council with a robust, compliant and future-ready SEND facility that meets both immediate and long-term educational needs.
For an informal chat
You May Also Like
These Related Stories
Creating extra space to grow at Edith Borthwick School

Heckmondwike Grammar School


No Comments Yet
Let us know what you think